Bobrick B-50517 Recessed (Long), Satin Stainless Steel, Heavy-Duty Specimen Pass-Through Cabinet

SKU: B-50517
(No reviews yet) Write a Review
$862.16
Adding to cart… The item has been added
Availability:
Ships in 49 business days from manufacturer.
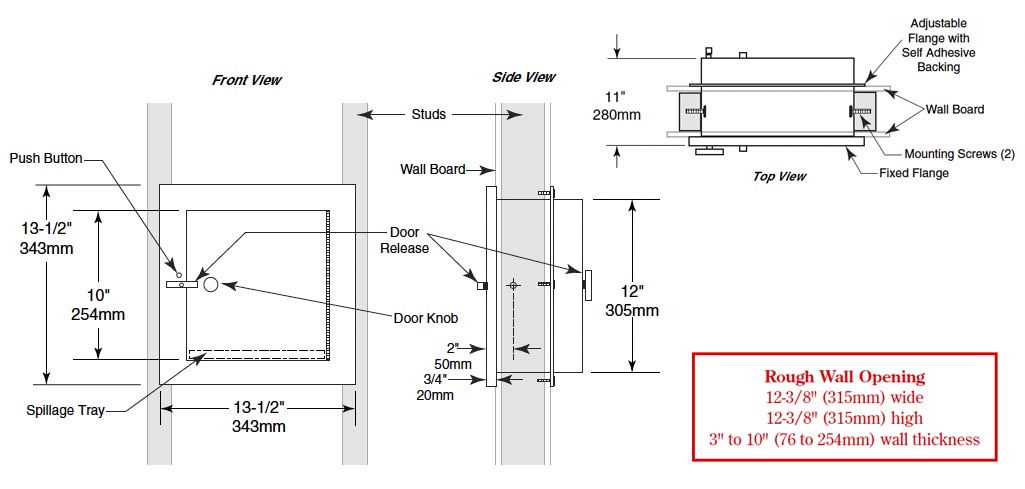
Provides convenient passage for specimen from patient area to laboratory. Mounts in walls 3" - 10″ thick with adjustable flange. Type-304 stainless steel, satin finish. ADA-compliant interlocking mechanism prevents both doors from being open at the same time; provides sight barrier. Removable stainless steel spillage tray. Rough wall opening: 12 - 3/8″ W x 12 - 3/8″ H (314 x 314mm).
  • Cabinet is entirely constructed of 20 gauge (0.9mm) Type 304 stainless. All welded construction.
  • Two door pass through. For privacy, door interlock prevents both doors from opening at same time.
  • Spillage tray and adjustable flange provided.
  • Accomodates wall thickness up to 10 inches.

Measurement Diagram:

Architectural Specification:


Extended Lead Time

Because this item ships directly from the manufacturer and they are currently reporting a lead time greater than 30 days, we cannot guarantee availability within a specific time frame. If you need your items by a certain date, please contact us prior to placing your order and we will be happy to work with the factory to provide the most accurate information possible.

Non-Cancellable,
Non-Returnable Products

Because this item is manufactured to order, Bradley does not allow returns or cancellations once the order is placed.