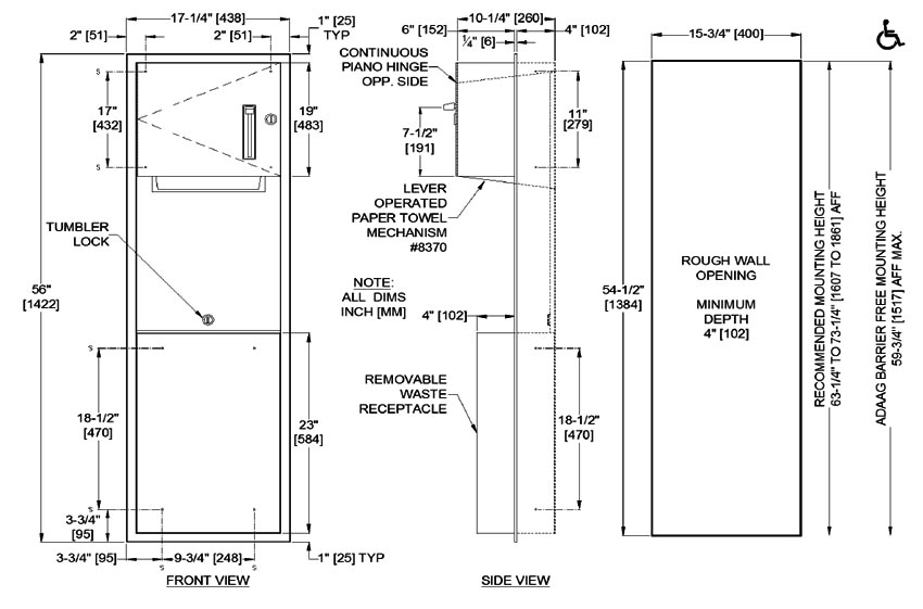
Unit mechanically dispenses 8″ or 9″ wide standard towel roll up to 800 ft. (244m) long and has stub roll capability for continuous dispensing. 12 gal. (45.4 liters) disposal capacity. A lever operated dispensing mechanism also supplied.
Measurement Diagram:
