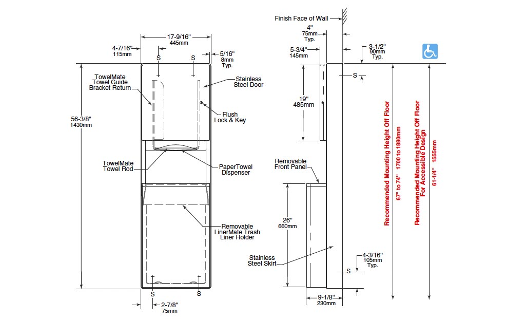
Unit equipped with TowelMate and LinerMate. Radius on corners and edges of flange, door, and waste receptacle shall complement other Bobrick ConturaSeries washroom accessories. Satin-finish stainless steel. Flush tumbler lock. Dispenses 600 C-fold or 800 multifold towels. Waste receptacle has a 15-gallon (56.8-L) capacity; extends 9 - 1/8″ (230mm) from the wall. Removable front panel for easy cleaning. Skirt for surface-mounting.
- 18-8, type-304, 22-gauge (0.8mm) stainless steel. All-welded construction.
- Front of waste receptacle has same degree of arc and match other Bobrick ConturaSeries accessories in the washroom.
- Equipped with LinerMate to facilitate installation and removal of disposable trash liners, retains liner inside waste receptacle
Measurement Diagram:
