This sophisticated combination paper towel and waste receptacle cabinet is designed to be completely recessed into the plane of the washroom wall, highlighting the seamless design that defines Piatto™. The phenolic door is attached to the cabinet using field-adjustable, furniture quality hinges and is secured shut by an internal spring-loaded latch. All hardware is concealed giving the Piatto™ Collection its minimalist appeal.
- Dispenses 600 C-fold, 800 multi-fold, or 1,100 standard single-fold towels (with provided adapter)
- 9 gal. (34 L) stainless steel waste receptacle
- Towel dispensing slot has hemmed-in rolled edge for snag free dispensing and user safety.
- Paper An adjustable towel adapter ensures that towels feed properly until depleted
Certifications:


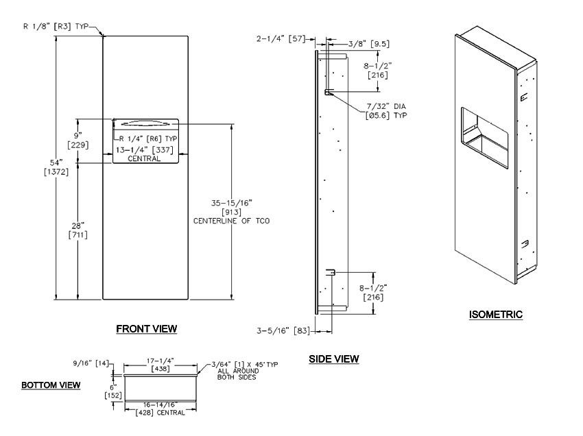
Measurement Diagram:
